Spacious Five Double Bedroom Fully Furnished House
SJ Property Services are delighted to offer this well-presented five double bedroom, fully furnished property located in a desirable area, close to London Road, The Level, and Brighton train station. Perfect for groups seeking the best of both worlds near town and Lewes Road, this property combines convenience with spacious living.
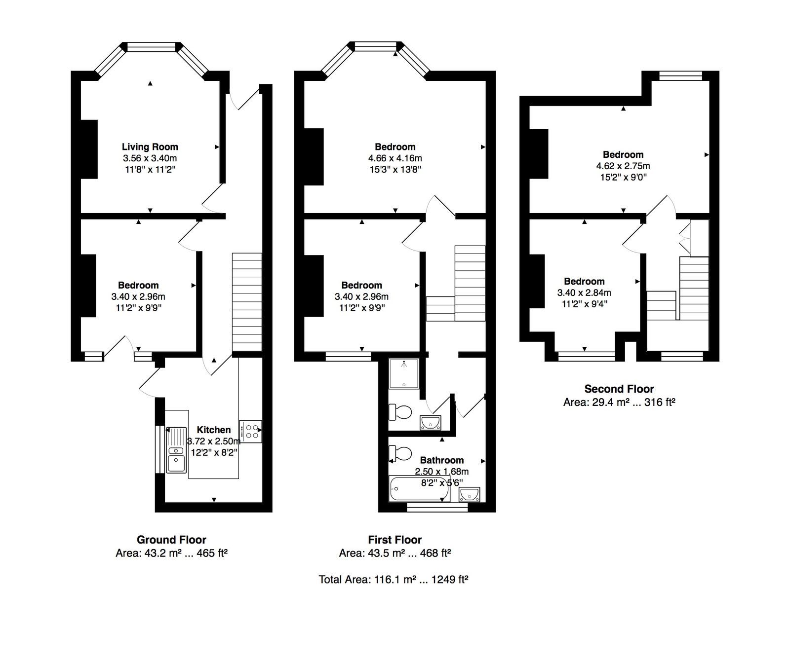
Set over three floors, the ground floor features a spacious lounge with a bay window to the front, a double bedroom, and a modern kitchen fitted with all white goods. A small garden area completes the ground floor layout. The first floor comprises a main bathroom with shower over bath, basin, and toilet, a second bathroom with shower cubicle, basin, and toilet, and two further furnished double bedrooms, including the largest bedroom at the front. The second floor houses the remaining two double bedrooms.
The property benefits from double glazing and gas central heating throughout. With its generous bedrooms, desirable location, and practical layout, this home is a popular let. Early internal viewings are strongly recommended.