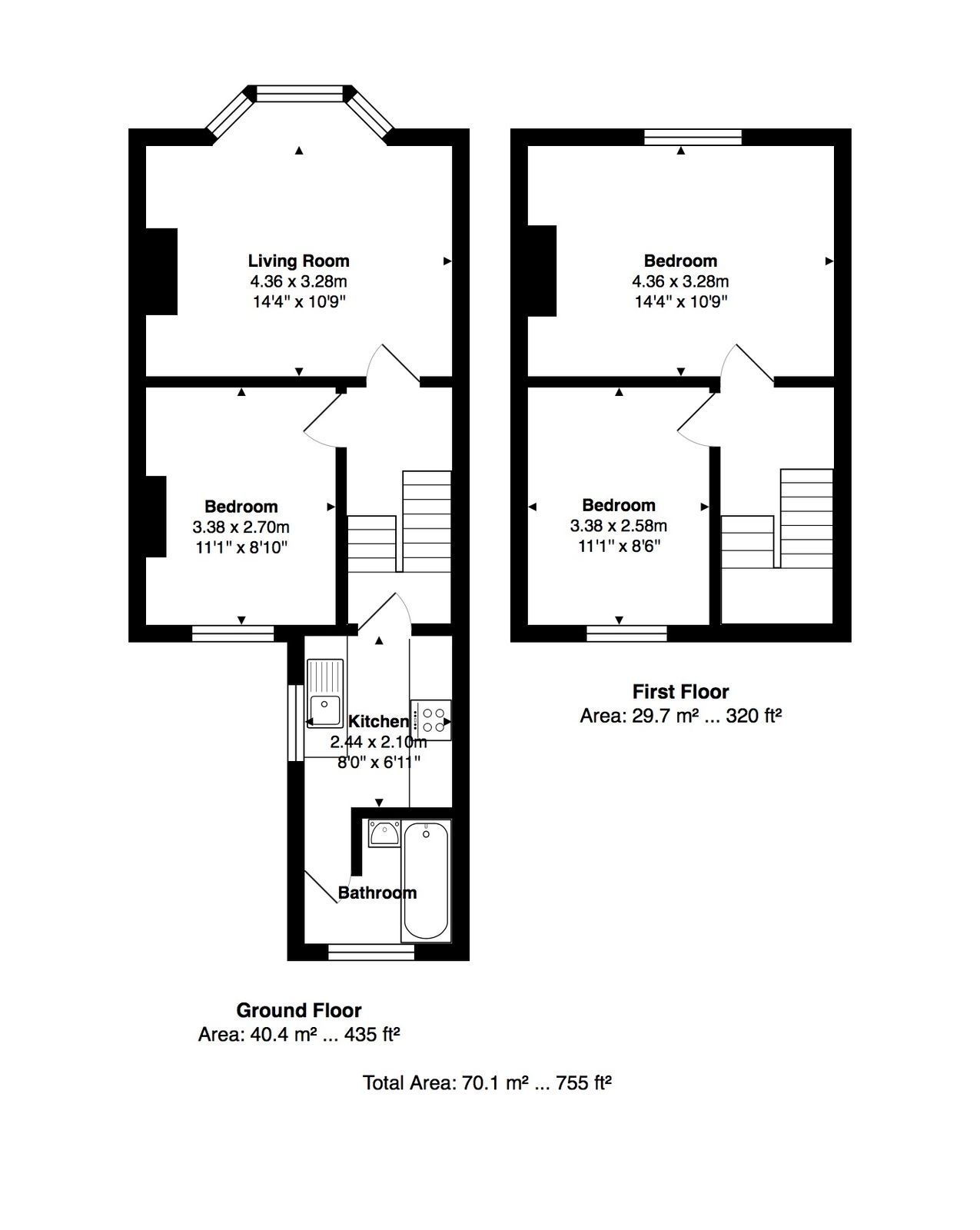
SJ Property Services are pleased to offer this well-proportioned, fully furnished three double bedroom student maisonette, ideally located in the popular London Road / Viaduct Road area. The property is within walking distance of the train station, local shops, and excellent transport links.
Set over two floors, the maisonette features three generously sized double bedrooms, a bright communal lounge with a bay window, and a galley-style kitchen equipped for everyday living. The bathroom includes a shower over bath, combining style and functionality.
With neutral décor, spacious rooms, and a practical layout, this property is perfect for student sharers seeking a comfortable and convenient home in the heart of London Road. Early viewings are highly recommended.